Villa singola in vendita

Manfredonia, Viale Fantasia - Ippocampo
€ 100.000
3 locali 3 locali
120 Mq 120 Mq
1 bagno 1 bagno

Villa singola in vendita

Manfredonia, Viale Fantasia - Ippocampo

Descrizione annuncio

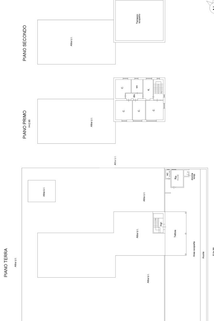
Proponiamo in vendita ad Ippocampo, villa singola composta da tre vani più servizi. Nello specifico la soluzione ci accoglie con una comoda zona giorno composta da ampio soggiorno e cucinino; segue il corridoio che ci conduce alla zona notte con camera da letto, cameretta e bagno. Completa l'immobile una dependance esterna con ulteriore bagno esterno e ripostiglio. La villa è circondata da un ampio giardino di esclusiva proprietà di 700 mq circa, ideale per chi cerca uno spazio esterno privato dove rilassarsi o intrattenere ospiti. La casa viene venduta completa di arredo, permettendo un immediato utilizzo senza necessità di ulteriori investimenti. La posizione della villa garantisce tranquillità e privacy. Questa soluzione abitativa rappresenta un'opportunità interessante per chi desidera vivere in un contesto sereno, con ampi spazi sia interni che esterni.

Mostra tutto

Caratteristiche

Rif.:
61102818
Piano:
1 di 1 (Piano terra)
Camere da letto:
1
Arredamento:
Completo
Condizionamento:
Autonomo
Ascensore:
No
Mostra tutto
Prezzo Prezzo
€ 100.000
Rata mutuo Rata mutuo
€ 472 / mese
Spese annue Spese annue
€ 0
Proponi il tuo prezzoProponi il tuo prezzo

Classe Energetica

G
G
G
G
G
G
G
G
G
EP globale non rinnovabile:
250.45 kW h/m² anno
EP globale rinnovabile:
261.23 kW h/m² anno
EP invernale del fabbricato:
EP estiva del fabbricato:
Anno di costruzione:
1990
Riscaldamento:
Autonomo
Tipo impianto:
A radiatori
Tipo alimentazione:
Metano

Ti interessa visionare l'immobile?

Fissa un appuntamento  Fissa un appuntamento

Richiedi informazioni

Clicca su Leggi per aprire l'informativa
* Questi campi sono obbligatori

Calcola il tuo mutuo

Semplice e senza impegno
Anticipo

( % )
Mutuo

( % )

pochi semplici passi

inserisci i tuoi dati
Questionario completato
Grazie per aver richiesto un appuntamento senza impegno con un nostro Consulente del Credito e Assicurativo.

Hai inserito correttamente tutti i dati necessari e a breve riceverai una e-mail con un link da convalidare per inviare i tuoi dati.
Affiliato
Studio Cerignola Srlu
Via Roosevelt, 30 71042 Cerignola (FG)

Il nostro staff


  • Gioacchino Cianci
    Affiliato

  • Maria Bellapianta
    Collaboratrice

  • Lorenzo Cianci
    Collaboratore

  • Nicola Pio Francesco Cianci
    Collaboratore

  • Alessia Gosciola
    Coordinatrice

  • Maria Pia Morra
    Coordinatrice

  • Alessia Sorrenti
    Collaboratrice
Via Roosevelt, 30 71042 Cerignola (FG)
Zona: Cerignola - Centro Storico
Mostra su mappa
Orari: dal lunedì al venerdì dalle 9:00 alle 13:00, dalle 16:30 alle 20:30. Sabato dalle 9:00 alle 13:00.
Affiliato
Studio Cerignola Srlu
Via Roosevelt, 30 71042 Cerignola (FG)

2025 Tecnocasa Franchising S.p.A. - P. IVA 08365160152 - Via Monte Bianco 60/A 20089 Rozzano (MI). Ogni agenzia ha un proprio titolare ed è autonoma. Privacy policy | Policy utilizzo | Cookie policy